【闸阀】的意思和解释
【闸阀】 是什么意思(来源:辞典修订版)
- 利用圆形闸门的滑动来调节或中断水流的制水阀。自来水管线中最为常用。
【闸阀】是什么意思(来源:辞书)
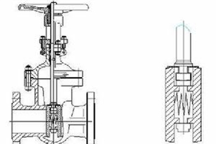
- 在液压回路中控制流体流动之开与关的阀(valve)种类很多,其中以公螺纹与母螺纹配合的方式来使闸上下滑动,以达回路启开及关闭之目的的阀称为闸阀。其动作原理与一般的水闸(water gate)完全一致,下图所示即为其前视及侧视剖面图。由上向下看,当手轮之旋转方向为顺时针时,图形的闸向下滑动而将阀孔(orifice)关闭,反之,当手轮之旋转方向为反时针时,图形的闸向上移动而将阀孔开启。
--作者:吴重雄
【闸阀】 图片鉴赏

相关词语
查字典的部份资料来自网络或由网友提供,不保留版权,如有侵权,请与我们联系以从站上删除! 免责声明:本站非营利性站点,以方便网友为主,仅供学习。
Tip:SCCG
